Description
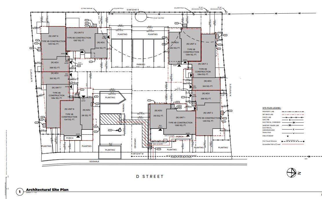
Nearly a 1/2 acre lot steps from the heart of downtown Davis! Plans are approved for 8 separate single family attached parcels. Each of the 8 lots would have an ADU in the garage so there are 16 total units approved. The total square footages of the approved units is 12,949 (6,491SF in building A and 6,458SF in building B). Buyer can build this OR something completely different on this superbly located land. This "D Street Gardens" project re-approval, with entitlements for the tentative subdivision map (TM#03-22), has a new expiration date per the city of Davis of... May 9th, 2026.
-
0BEDS
-
0.44ACRES
-
0BATHS
-
01/2 BATHS
School Information
Description
Nearly a 1/2 acre lot steps from the heart of downtown Davis! Plans are approved for 8 separate single family attached parcels. Each of the 8 lots would have an ADU in the garage so there are 16 total units approved. The total square footages of the approved units is 12,949 (6,491SF in building A and 6,458SF in building B). Buyer can build this OR something completely different on this superbly located land. This "D Street Gardens" project re-approval, with entitlements for the tentative subdivision map (TM#03-22), has a new expiration date per the city of Davis of... May 9th, 2026.
Related Properties
© 2025 MetroList® MLS. All rights reserved. All measurements and all calculations of area are approximate. Information provided by Seller/Other sources, not verified by Broker. All interested persons should independently verify accuracy of information. Provided properties may or may not be listed by the office/agent presenting the information. Data last updated 2025-11-10T19:42:30.267. MetroList® MLS Terms of Use. IDX provided by BoomTown.