Description
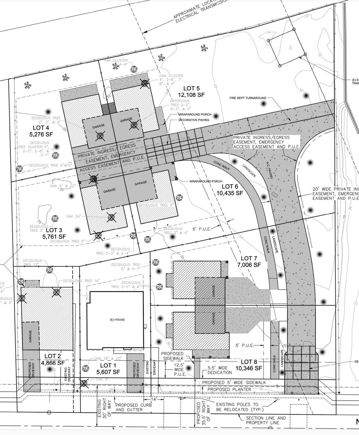
2026 Subdivision Development Opportunity?!! - Now Offered at a Significantly Reduced Price! Seize the moment with this dramatically priced turnkey development package with seven contiguous parcels totaling 1.17 acres. This fully entitled subdivision comes with an approved site plan, a recorded final map, and completed 2024 improvement plans, making it nearly shovel-ready for development. Designed by the acclaimed Ellis Architects, the project includes plans for six two-story half-plex homes, each offering 4 bedrooms, 2.5 baths, a 2-car garage, and 1,756-1,856 sq ft of living space. Also included are plans for one detached single-story residence with approximately 1,310 sq ft, perfect for broad buyer appeal. School fees have already been paid, offering added value and faster timelines. Plus, the subdivision comes with no HOA fees, creating long-term flexibility and strong marketability. This is a rare, nearly plug-and-play opportunity for builders or investors submit your permits and start building soon! The home at 905 North, is not a part of the sale.
-
0BEDS
-
1.17ACRES
-
0BATHS
-
01/2 BATHS
School Information
Description
2026 Subdivision Development Opportunity?!! - Now Offered at a Significantly Reduced Price! Seize the moment with this dramatically priced turnkey development package with seven contiguous parcels totaling 1.17 acres. This fully entitled subdivision comes with an approved site plan, a recorded final map, and completed 2024 improvement plans, making it nearly shovel-ready for development. Designed by the acclaimed Ellis Architects, the project includes plans for six two-story half-plex homes, each offering 4 bedrooms, 2.5 baths, a 2-car garage, and 1,756-1,856 sq ft of living space. Also included are plans for one detached single-story residence with approximately 1,310 sq ft, perfect for broad buyer appeal. School fees have already been paid, offering added value and faster timelines. Plus, the subdivision comes with no HOA fees, creating long-term flexibility and strong marketability. This is a rare, nearly plug-and-play opportunity for builders or investors submit your permits and start building soon! The home at 905 North, is not a part of the sale.
Related Properties
© 2025 MetroList® MLS. All rights reserved. All measurements and all calculations of area are approximate. Information provided by Seller/Other sources, not verified by Broker. All interested persons should independently verify accuracy of information. Provided properties may or may not be listed by the office/agent presenting the information. Data last updated 2025-11-15T15:38:58.507. MetroList® MLS Terms of Use. IDX provided by BoomTown.