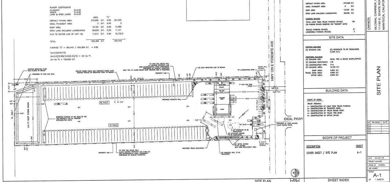
Description
I\T (Trucking Terminal)- Close to HWY 120/99 Entitled Land and documents available. Site propose Parking space:109 total long term truck parking spaces(20 parking spaces reserved for ''whisper''units -Vehicle parking spaces 21, 2 accessible parking spaces Scope of work: Construction of long term truck parking, construction of transfer dock, truck tire shop, brake Shops & office area. Existing building: (E) Residence to be demolished
-
0BEDS
-
10ACRES
-
0BATHS
-
01/2 BATHS
-
1,543SQFT
-
$3,370$/SQFT
School Ratings & Info
Description
I\T (Trucking Terminal)- Close to HWY 120/99 Entitled Land and documents available. Site propose Parking space:109 total long term truck parking spaces(20 parking spaces reserved for ''whisper''units -Vehicle parking spaces 21, 2 accessible parking spaces Scope of work: Construction of long term truck parking, construction of transfer dock, truck tire shop, brake Shops & office area. Existing building: (E) Residence to be demolished
© 2025 MetroList® MLS. All rights reserved. All measurements and all calculations of area are approximate. Information provided by Seller/Other sources, not verified by Broker. All interested persons should independently verify accuracy of information. Provided properties may or may not be listed by the office/agent presenting the information. Data last updated 2025-12-09T11:39:49.42. MetroList® MLS Terms of Use. IDX provided by BoomTown.