Description
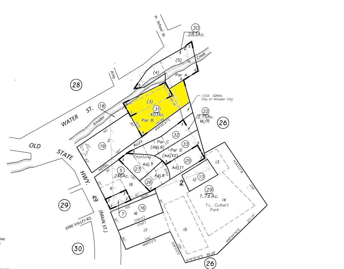
Discover the perfect location with small-town charm at this 0.40-acre creekside lot in downtown Amador City. Zoned R1 residential, this level parcel with rough grading is primed for development. All utilities (water, sewer, and electricity) are available. Wake up to scenic town views and unwind to the soothing sounds of the creek. Located just steps from aclaimed restaurants, boutique shops, and award-winning wineries, this property offers a rare chance to build in California's smallest incorporated city. Whether you're envisioning a custom home, vacation retreat, or investment property, this location delivers. Don't miss out! Opportunities like this are few and far between!
-
0BEDS
-
0.4ACRES
-
0BATHS
-
01/2 BATHS
School Information
Description
Discover the perfect location with small-town charm at this 0.40-acre creekside lot in downtown Amador City. Zoned R1 residential, this level parcel with rough grading is primed for development. All utilities (water, sewer, and electricity) are available. Wake up to scenic town views and unwind to the soothing sounds of the creek. Located just steps from aclaimed restaurants, boutique shops, and award-winning wineries, this property offers a rare chance to build in California's smallest incorporated city. Whether you're envisioning a custom home, vacation retreat, or investment property, this location delivers. Don't miss out! Opportunities like this are few and far between!
© 2026 MetroList® MLS. All rights reserved. All measurements and all calculations of area are approximate. Information provided by Seller/Other sources, not verified by Broker. All interested persons should independently verify accuracy of information. Provided properties may or may not be listed by the office/agent presenting the information. Data last updated 2026-04-14T18:39:51.363. MetroList® MLS Terms of Use. IDX provided by BoomTown.